Mini-Kanal-System

(ein Rückblick auf meine Unterrichtsunterlagen für meine Schüler)

Geschichte der Sanitär-, Heizungs-, Klima- und Solartechnik
Abkürzungen im SHK-Handwerk
Bosy-online-ABC

pneumatischer Abgleich

Die beste raumlufttechnische Anlage, ist die Anlage, die man nicht sieht, hört und riecht
Das Mini-Kanal-System wurde schon Anfang der 70er des letzten Jahrhunderts unter der Bezeichnung "Klimazentralheizung" entwickelt (dabei durfte ich ein wenig mitwirken) und wird heute unter der Marke "Comfort-Luftheizung" angeboten.
Der Begriff "Klimazentralheizung" wurde damit begründet, dass diese Anlagen nicht nur zur Be- und Entlüftung einer Wohnung oder eines Hauses eingesetzt werden, sondern auch alle Faktoren des Raumklimas beeinflusst werden können. Entsprechend der jeweiligen Ausstattung kann mit diesen Anlagen die Luft gereinigt, erwärmt, befeuchtet, entfeuchtet und gekühlt (über kalte Luft in der Nacht oder über eine Wärmepumpe) werden.
Diese Anlagen waren eine Weiterentwicklung der bis dahin bekannten Warmluftheizungen, die zu der Zeit erhebliche Nachteile hatten, wie z. B. Staubversengung aufgrund hoher Wärmetauschertemperaturen, große Kanalquerschnitte, Schallübertragung von Raum zu Raum (Haustelefon), Zugerscheinungen und schlechte Regelbarkeit.
Das Leitungssystem kann durch die verschiedensten Wärmeerzeuger oder Lüftungsgeräte mit Luft versorgt werden. Bei der Einführung des Systems wurden "Warmluftgeräte" mit separaten Plattenwärmetauscher zur Wärmerückgewinnung eingesetzt, die dann durch die sich fortlaufend ändernden Lüftungsgewohnheiten durch Ventilatoreinheiten mit eingebautem Plattenwärmetauscher ersetzt wurden. Auch der Einsatz der Mini-Kanäle hat sich im Laufe der Zeit geändert.
alte Geräte
Warmluftgerät - WWH
Lüftungseinheit
Ventilatoreinheit mit WRG
neue Geräte


Recovery Comfort 400 mit offener Front


RecoverySmart

Quelle: Schrag GmbH

Die Klimazentralheizung wurde als reine lüftungstechnische Anlage ausgelegt. Da bedeutet, dass die Heizlast der der Räume nur über die Luft zugeführt wurde. Dementsprechend groß war auch das Zentralgerät (mit WW-Wärmetauscher oder direktbeheizt - 4 bis 30 kW) und die Luftmenge (700 bis 2000 m3/h). Die Luftleistung wurde stufenlos bzw. 5stufig geregelt. Das Zentralgerät mit dem Luftverteiler wurde zentral um Untergeschoss oder im Erdgeschoss aufgestellt. Außerdem waren Flachgeräte für die Zwischendecke einsetzbar. Von dem Verteiler wurden die einzelnen Räume über das Mini-Kanal-System mit dem notwendigen Luftvolumenstrom versorgt.
1. Zuluftgitter - 2. Kantenschutz - 3.Luftleitblech - 4. Zuluftaustritt - 5. Schalldämpfer - 6. Niederhalter - 7. Bogen (30°, 45°, 60°, 90°) - 8. Minileitung - 9. Verbindungsschloss - 10. Anschlussstutzen - 11. Verteiler - 12. Blinddeckel
Quelle: Schrag GmbH
Die Leitungslängen sollten 8 m nicht übersteigen und die Abstände der Kanäle sollten möglichst gleichmäßig sein, damit eine gleichmäßige Fußbodenerwärmung gewährleistet wurde. Vor jedem Luftauslass wurde ein Schalldämpfer eingesetzt. Der pneumatische Abgleich wurde durch Drosselblenden und Luftklappen an den Anschlussstutzen am Verteiler durchgeführt.
Die Mini-Kanäle aus verzinktem Stahlblech (0,65 mm) haben die Abmessungen B = 100 / H = 50 mm und transportieren bei max. 60 m3/h eine spezifische Heizleistung ca. 550 W bei einer Übertemperatur zur Rauluft von 25 K mit einer Geschwindigkeit von ca. 3,3 m/s. Bei Bedarf konnten auch spezielle elektrische Heizregister in die Zuluftstutzen eingesetzt werden.
Die Zuluftdurchlässe wurden möglichst im Fußboden unter den Fenstern (bei großen Fensterflächen möglichst breite Luftauslässe) angebracht, um dem Kaltlufteinfall entgegenzuwirken. Dabei sollte die Luftaustrittsgeschwindigkeit zwischen 0,5 bis 1,2 m/s liegen, damit eine gute Vermischung (Induktion) mit der Raumluft gewährleistet wurde. Die Lufttemperaturen sollten zwischen 35 bis 40 °C und nicht über 55 °C liegen. Bei den heutigen Fenstern mit entsprechend guten U-Werten (<1,3 W/(m2*K) ist diese Anordnung nicht mehr unbedingt notwendig.
Die Luft aus der Küche, Badezimmer und Toiletten wurde direkt über einen Plattenwärmetauscher (WRG) direkt ins Freie abgeführt. Die dadurch notwendig Außenluft wird über einen Außenluftanschluss am Zentralgerät wieder zugeführt. Die restlichen Räume wurden hauptsächlich mit Umluft betrieben.
Über Raumthermostaten können die Luftklappen der einzelnen Luftleitungen am Verteiler betätigt und somit die Raumtemperaturen geregelt werden. Die Ventilatordrehzahl kann in Abhängigkeit zur Zulufttemperatur geregelt werden.

Warum sich dieses System nicht so richtig durchgesetzt hat, war wohl in den höheren Anschaffungs- und Betriebskosten gegenüber den "einfachen" Radiatoren- bzw. Plattenheizkörperanlagen zu sehen. Außerdem ist die Lüftungstechnik auch heutzutage immer noch das Stiefkind der SHK-Technik. Denn die heute eingebauten kontrollierten Wohnungslüftungen (KWL) sind eigentlich keine richtigen RLT-Anlagen.
Na gut, das ist meine persönliche Meinung :>))

Beispiel - Erdgeschoss
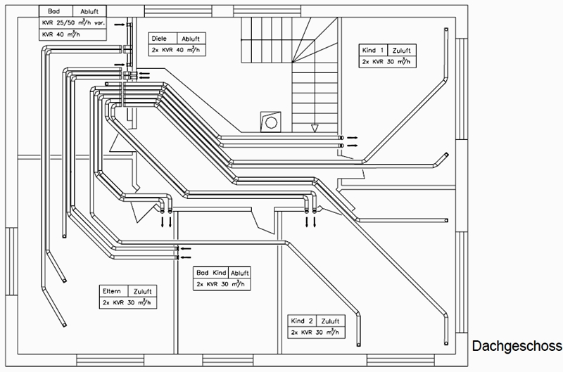
Beispiel - Dachgeschoss
Bauteile das Mini-Kanal-Systems
Holen Sie sich die beste Luft ins Haus - SCHRAG – Kontrollierte Wohnungslüftung
Die Firma SCHRAG hat ihre Geschäftstätigkeit zum 30.04.2020 eingestellt

Reinigung - Luftkanäle/Luftleitungen
Quelle: Wöhler Messgeräte Kehrgeräte GmbH
Wenn eine Reinigung mit einem leistungsstarken Staubsauger nicht ausreicht, werden Kanalabschnitte der Lüftungsanlage, z.B. mit Absperrballons, abgedichtet. Danach wird eine bis zu 20 m lange flexible Welle eingeführt, an deren Ende eine rotierende Reinigungsbürste (Rotationsbürste) befestigt ist; die von einem elektronisch geregeltem Motor (Rechts-/Linkslauf) angetrieben wird. > mehr
 

das neue Videoportal von HaustechnikDialog mit vielen interessanten Informationen und Anleitungen aus der Haustechnik
Videos aus der SHK-Branche
SHK-Lexikon
Hinweis! Schutzrechtsverletzung: Falls Sie meinen, dass von meiner Website aus Ihre Schutzrechte verletzt werden, bitte ich Sie, zur Vermeidung eines unnötigen Rechtsstreites, mich umgehend bereits im Vorfeld zu kontaktieren, damit zügig Abhilfe geschaffen werden kann. Bitte nehmen Sie zur Kenntnis: Das zeitaufwändigere Einschalten eines Anwaltes zur Erstellung einer für den Diensteanbieter kostenpflichtigen Abmahnung entspricht nicht dessen wirklichen oder mutmaßlichen Willen. Die Kostennote einer anwaltlichen Abmah-nung ohne vorhergehende Kontaktaufnahme mit mir wird daher im Sinne der Schadensminderungspflicht als unbegründet zurückgewiesen.

Besucherzaehler