Pneumatischer Abgleich

"der Versuch einer kurzen Erklärung"

Vielleicht hat jemand eine kürzere und bessere Erklärung, dann hier meine E-Mail

Geschichte der Sanitär-, Heizungs-, Klima- und Solartechnik
Abkürzungen im SHK-Handwerk
Bosy-online-ABC

Messgeräte - Lüftungstechnik

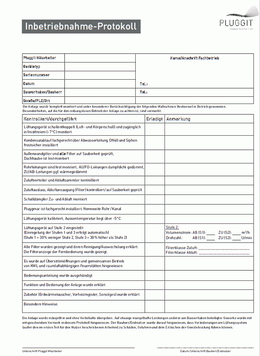
Für ein einwandfreies Funktionieren einer Lüftungsanlage müssen die Volumenströme richtig eingestellt werden, d. h. jeder Luftauslass soll nur die Luftmenge bekommen, die der Kanalnetzberechnung entspricht. Außerdem ist der pneumatische Abgleich (PA) nicht nur nach der VOB (Vergabe- und Vertragsordnung für Bauleistungen) Teil C – ATV DIN 18379 vorgeschrieben, sondern auch Grundvoraussetzung für eine effizient arbeitende Anlage. Natürlich gehört diese Leistung in den Rahmen der Einregulierungsarbeiten nach Fertigstellung der Anlage. Über die Einregulierung muss ein Inbetriebnahmeprotokoll ausgefertigt werden.
Der pneumatische Abgleich sollte möglichst unter den Betriebsbedingungen durchgeführt werden. Also unter den Bedingungen, die bei der Berechnung zugrunde gelegt wurden bzw. wenn der Betreiber eingezogen ist und die Räume fertig eingerichtet sind.
Da die VOB Teil C – ATV DIN 18379 zu den anerkannten Regeln der Technik (aRdT) gehören, müssen sie bei der Erstellung der Anlage beachtet werden.
3.4 Einstellen der Anlage
3.4.1 Der Auftragnehmer hat die Anlagenteile so einzustellen, dass die geplanten Funktionen und Leistungen erbracht und die gesetzlichen Bedingungen erfüllt werden.
Der Abgleich der Luftvolumenströme ist den rechnerisch ermittelten Einstellwerten entsprechend vorzunehmen. Gemessene Werte sind zu dokumentieren.
3.4.2 Das Bedienungs- und Wartungspersonal für die Anlage ist vom Auftragnehmer einmal einzuweisen.
Im Prinzip ist der pneumatische Abgleich mit dem hydraulischen Abgleich einer Flüssigkeitsanlage (Heizungs-, Solar- und Kühlanlagen) zu vergleichen. Nur muss bei einer Lüftungsanlage genauer gerechnet und eingestellt werden, weil die Förderdrücke kleiner sind. Fehlerhafte Auslegungen lassen sich bei diesen Anlagen oftmals nur mit viel Aufwand ausgleichen.
So wie es bei Flüssigkeitsanlagen die Rohrnetzberechnung gibt, ist bei einer Lüftungsanlage eine detaillierte Kanalnetzberechnung durchzuführen, Auf diese Berechnung wird bei kleinern Anlagen (KWL) oft verzichtet, was dann zu Problemen führen kann, so z. B. Luftgeräusche, schlechte Durchlüftung einiger Räume, Zugerscheinung durch falsche Auslasseinstellungen oder Luftauslässe. Auch wird dadurch nicht bemerkt, dass die erforderlichen Luftmengen nicht vorhanden sind.
In eine Kanalnetzberechnung müssen alle einzubauenden Bauteile einbezogen werden, so z. B.
  • Zentralgerät
  • Außenluftgitter
  • Filter
  • Schalldämpfer
  • Klappen
  • Volumenstromregler
  • Luftauslass
Das Kanalsystem kann entweder über gerade Strecken plus Einzelwiderstände (Bogen, Abzweigungen, Reduzierungen) oder mit dem "gleichwertigen Rohrdurchmessern" (hdraulischer Durchmesser) alle einzubauenden Teile berechnet werden. Hierzu stellen die Hersteller entsprechende Tabellen und Diagramme zur Verfügung.
Bei einem geraden Zuluftkanal von konstantem Querschnitt mit vielen gleichgroßen Luftaustrittsöffnungen tritt die Luft durchaus nicht gleichmäßig aus allen Durchlässen aus, sondern die einzelnen Volumenströme werden zum Ende des Kanals hin größer.

Für die Verteilung des Luftstromes in verzweigten Kanalsystemen werden die Luftgeschwindigkeiten in den verschiedenen Kanalabschnitten nach Erfahrungswerten gewählt und mit diesen Werten werden die Druckverluste für den Kanal mit dem größten Widerstand (meistens der längsten Kanal) berechnet. Maßgebend ist der zulässige Geräuschpegel und der Druckverlust.

Richtwerte für die Wahl der Geschwindigkeiten
Teil
Luftgeschwindigkeiten in m/s
Komfortanlagen
Industrieanblagen
Außenluftgitter
2 -3
4 - 6
Hauptkanäle
4 - 8
8 - 12
Abzweigkanäle
3 - 5
5 - 8
Abluftgitter
1,5 - 2,5
3 - 4

AIR EXCELLENT SCHLAUCHSYSTEM UNIVERSAL VERTEILERBOX

Quelle: Brink Climate Systems Deutschland GmbH

Ein pneumatischer Abgleich kann auch ohne automatische Volumenstromregler durchgeführt werden. Die Vorausetzung ist eine genaue Berechnung des Kanalsytems mit den notwendigen Widerständen an den Verteilerabgängen durch einen Fachplaner.
An dem Verteiler werden an den Luftleitungsabgängen justierbare Drosselblenden bzw. Reduzierringe eingesetzt. Mit der Drosselblenden wird der Volumenstrom der Leitungen eingestellt. Die Einstellungen der Drosselblenden für den strömungstechnischen Abgleich (Pneumatischer Abgleich) werden mit einem Software-Tool ermittelt. Dann werden die Ringe der Drosselblenden entsprechend der Auslegung entfernt und die Drosselblenden in den Verteilerkasten eingesetzt.
Die Drosselblenden können jederzeit wieder entfernt und angepasst werden. Dies erfordert aber einen erheblichen Aufwand, wenn sich z. B. im Haus durch eine Raumnutzungsänderung der Luftwechsel ändert und die Luftmenge neu einreguliert werden muss.
Diese Art des Abgleichs gleicht im Prinzip dem hydraulischen bzw. thermischen Abgleich bei Flüssigkeitssystemen (Heizung, Solar, Soleanlagen, Trinkwasserzirkulation). Hier werden die Einstellungen des Volumenstroms in den Ventilen vorgenommen.

Luftverteilsystem Air Excellen - Flachkanal - Centrotherm
Air Excellen - Einfache, effektive Luftverteilung - Centrotherm


Beitrag im HTD-Forum - Verfasser: VMCDFA - Pierre

Da eine raumlufttechnische Anlage, wie eine Flüssigkeitsanlage, ein geschlossenes System ist, müssen alle zu belüftenden Räume in den Abgleich einbezogen werden. Schon ein geöffnetes Fenster in einem Raum macht die Einregulierung unmöglich, weil die Druckverhältenisse nicht stimmen. Auch die Räume sind ein Bestandteil der Anlage, quasi ein Stück Kanal bzw. Lüftungsleitung. Die Luft geht immer den Weg des geringsten Widerstandes, also werden andere Räume aus dem Kreislauf ausgeschlossen.

.

Dichte Lüftungssysteme
Eine fachgerechte Montage ist die Grundlage für eine dichte RLT-Anlage (raumlufttechnische Anlage), bei der die für die jeweiligen Räume ausgelegten Luftmengen auch wirklich ankommen. Die Luftdichtigkeit der Luftleitungssysteme bzw. Kanalsysteme und die Verbindungen an Bauteilen ist nicht nur aufgrund der Leckluftverluste sondern auch hinsichtlich der Energieeinsparung von Bedeutung. Leckagen haben aber auch noch viele andere Auswirkungen (Geräusche, größere Anlagen-Dimensionierungen, unkontrollierter Luftein- und Austritt, Luftmengenabweichungen, Eindringen von Schmutzteilchen). In allen Fällen kommt es immer zu Mehrkosten, die notwendig werden, um eine fehlerhafte Montage auszugleichen. > mehr


Dichtheitsprüfung von Lüftungsleitungen

Planer und ausführende Firmen streiten immer wieder über die Notwendigkeit einer Dichtheitsprüfung des Leitungssystems einer RTL-Anlage, zu denen auch die kontrollierte Wohnungslüftung (KWL) gehört. Da aber Leckagen in dem Leitungssystem dazu führen, dass in schlecht ausgeführten Anlagen ca. 33 % der für den jeweiligen Raum ausgelegten Luftmenge dort nicht ankommt. Was aber spätestens bei dem pneumatischen Abgleich bemerkt werden kann. Zu dem Zeitpunkt sind aber die Luftleitungen evtl. nicht mehr zugänglich. Daraus ergibt sich logischerweise, dass eine Dichtheitsprüfung durchgeführt werden sollte.

Nach der VOB Teil C - DIN EN 18379 - 3.2.7.1 müssen alle Verbindungen der Luftleitungen entsprechend den Betriebsbedingungen luftdicht und stabil sein, aber nach 4.2.14 sind Dichtheitsprüfungen von luftführenden Anlagenteilen "besondere Leistungen", die extra beauftragt und entsprechend vergütet werden müssen. Dazu sind nach 3.2.7.2 entsprechende verschließbare Messöffnungen vorhanden sein. > mehr

Fortsetzung  in Arbeit

Gleichwertiger Rohrdurchmesser

In den meisten Tabellen sind angegebene Kenngrösse R (Rohrreibungsbeiwert in Pa/m) für runde Rohre gültig. Die Errechnung des hydraulischen, gleichwertigen oder äquivalenten Durchmessers dient als Grundlage zur Berechnung rechteckiger Luftkanalformen.

Bei der (idealerweise) runden Form einer Lüftungsleitung errechnet sich der erforderliche Durchmesser bei gegebenem Volumenstrom und Strömungsgeschwindigkeit wie folgt:
V = Volmenstrom - m³/h
w = Strömungsgeschwindigkeit - m/sec

Bei rechteckigen Lüftungskanälen ist gleiche Querschnittsfläche nicht gleichbedeutend mit gleichem Druckverlust. Er steigt mit der Erhöhung des Seitenverhältnisses an. Dieser gleichwertige Querschnitt (dgw) als Rechengrösse für den strömungstechnischen Vergleich errechnet sich nach folgender Formel:

a = Kanalbreite - m - b = Kanalhöhe - m

Die nachfolgende Tabelle zeigt einen Vergleich des Druckverlustes von Rechteckkanälen zu Rundrohr bei gleichem Querschnitt:

Fläche
Kanalquerschnitt A
[mm]

Durchmesser
gleichwertig
d gw [mm²]

Druckverlust
p
[%]

rund

Ø 150

17.662

100

1 : 1

132 x 132

~17.662

118

1 : 2

188 x 94

~17.662

129

1 : 5

297 x 59

~17.662

171

Gleichwertiger, hydraulischer oder äquivalenter Durchmesser
Quelle: ZLT Lüftungs- & Brandschutztechnik GmbH

Einregulierung der Lüftungsanlagen - Detlef Malinowsky Dipl.-Ing. (FH)
Abgleich der Zu- und Abluftelemente - Dipl.-Ing. Norbert Stärz - Ingenieurbüro TGA GmbH


Selbsttätige Volumenstromregler stellen den Volumenstrom im Kanal- bzw. Luftleitungssystem oder an den Luftein- und Auslässen automatisch ein und halten ihn konstant. Dadurch ist ein  pneumatischen Abgleich in vielen Fällen nicht mehr notwendig.
Quelle: Trox GmbH
Quelle: SCHAKO KG
Quelle: ALDES Lufttechnik GmbH
Mechanisch selbsttätige Volumenstromregler
Eine leichtgängig gelagerte Regelklappe hält den eingestellten Volumenstrom über den gesamten Differenzdruckbereich konstant.
Der Sollvolumenstrom lässt sich von außen ohne Werkzeug an einer Skala einfach einstellen. Zur vereinfachten Abwicklung von Projekten können die Regler nach Nennweite bestellt und montiert werden. Der gewünschte Sollwert wird dann bei der Montage einfach und zuverlässig eingestellt.
Zur Reduzierung des Abstrahlgeräusches sind die Regler auch mit einer Dämmschale lieferbar. Für höhere akustische Anforderungen kann ein Rundschalldämpfer eingesetzt werden.
Besondere Merkmale
  • Mechanisch selbsttätig, ohne Fremdenergie
  • Reibungsarmer Balg, wirksam auch als Dämpfungselement
  • Volumenstrom von außen an einer Skala einstellbar
  • Hohe Regelgenauigkeit
  • Lageunabhängig und wartungsfrei
  • Werksseitig auf einen Referenzvolumenstrom voreingestellt
  • Geräte grundsätzlich nach der Montage zur Inbetriebnahme bereit
  • Kein Einmessen vor Ort erforderlich
Quelle: Trox

Der Konstantvolumenstromregler ohne Mechanik erfordert bei normalen Einsatzbedingungen keine regelmäßige Wartung. Er verfügt über keine engen Luftwege, die ein Hindernis darstellen könnten. Es besteht keine Gefahr der Staubablagerung oder Verstopfung. Wird der Regler in stark mit Staub oder Schmierstoffen belasteter Luft eingesetzt, sollte ein Zugang zu Reinigungszwecken vorgesehen werden.
Vorteile
  •  Selbständige Regulierung des Volumenstroms
  •  Aufwendiges und kostspieliges Einregulieren von Lüftungsanlagen wird überflüssig
  •  Keine elektrischen oder pneumatisches Anschlüsse notwendig
  •  Erleichterung der Planung und Kompensierung kleinerer Fehler
  •  Ausgleich von Druckänderungen durch verstopfte Filter oder nachträgliche konstruktive Änderungen
  •  Ausgleich von Druckänderungen durch witterungsbedingte Kaminzugeffekte
  •  Lange Lebensdauer
Für Räume mit variablem Lüftungsbedarf stehen auch 2-stufige Regler zur Verfügung, die dann motorisch verstellbar sind. Man setzt diese zum Beispiel in Hotels, Schulen, Kindergärten, Auditorien, Kinos und Restaurants ein.
Quelle: ALDES
.
Volumenstronregler - Trox GmbH
Volumenstromregler - LTG Aktiengesellschaft
Volumenstromregler - Schako Ferdinand Schad KG

Schalldämm-Volumenstrom-Element
Quelle: Helios Ventilatoren
Das Schalldämm-Volumenstrom-Element kann zwei Aufgaben in der kontrollierten Wohnungslüftung (KWL) erfüllen.
Mit den Elementen kann der Volumenstrom im Kanal- bzw. Rohrleitungssystem abgestimmt werden. Außerdem wird über die richtige Auswahl der Elemente der Schallpegel reduziert werden. Hierdurch werden Ventilator- und Strömungsgeräusche durch Absorption gemindert. Die Schallpegelminderung wird durch mehrere hintereinander eingesetzte Elemente erreicht. So bewirken z. B. zwei Elemente eine Verdopplung der Einfügungsdämmung.
Über die Herstellerdiagramme kann das passende Element ausgewählt werden.

Luftstrommessung - Strömungsvisualisierung
Strömungsprüfer für Luft, mit Gebläseball, Röhrchen und Gummikappen
Strömungsprüfer Dräger Flow-Check
Strömungsprüfer Dräger Flow-Check-Set
Quelle: Drägerwerk AG & Co. KGaA
Rauchpatronen eignen sich besonders gut, um Luftströmungen im nicht mehr messbaren Bereich (< 0,05 m/s) darzustellen. Diese werden in der Klima-, Lüftungs- und Schornsteintechnik eingesetzt. Besonders bei dem Nachweis eines Kaltlufteinfalls von kalten Außen- und Fensterflächen, der oft als störend bei Fußbodenheizungen empfunden wird.
Smokedec-Rauchpatronen erzeugensind einen wirbelnden Rauch, der bei der Überprüfung von Klima- und Lüftungsanlagen und bei der Suche nach Leckstellen in Kanalsystemen eingesetzt wird.
Der Rauch ist völlig ungiftig, enthält kein Oel und hat die gleiche Dichte wie die umgebende Luft. Dadurch kann das natürliche Steigen und Fallen von Luftströmungen beobachtet werden. Die Patronen ergeben eine ausreichende Menge Rauch, der kontinuierlich an die Luft abgegeben wird. So lassen sich auch Luftbewegungen bei kleinsten Geschwindigkeiten sicher verfolgen.

Die Röhrchen in dem Dräger-Strömungsprüfer enthalten ein mit Schwefelsäure imprägniertes poröses Trägermaterial. Nach Öffnen der Glasspitzen wird mit Hilfe eines kleinen Gebläseballs Luft durch das Röhrchen gedrückt. Mit dem Wasserdampfgehalt der Luft bildet sich dabei ein stark verdünntes Schwefelsäureaerosol, das als weißer Rauch an der Austrittsöffnung des Röhrchens deutlich sichtbar wird. Dieser Rauch wird von der Luftströmung getragen, da sich dessen spezifisches Gewicht nur unwesentlich von dem der Luft unterscheidet. Der Strömungsprüfer kann mehrfach verwendet werden und wird bis zum nächsten Einsatz mit den mitgelieferten Gummikappen verschlossen.
Mit der Nebelwolke, die mit dem Strömungsprüfer Dräger Flow-Check erzeugt wird, werden auch die kleinsten Luftströmungen sichtbar gemacht.
Ein kleines Heizelement im Kopf des Gerätes erhitzt ein speziell entwickeltes, höher-molekulares Alkoholgemisch, das sich in einer Patrone befindet. Beim Austritt kondensiert das entstehende Gas zu einem Nebel. Nach dem jeweiligem Einsatzfall werden per Knopfdruck einzelne, kleine Nebelwolken oder durch das permanente drücken oder feststellen des Knopfes ein kontinuierlicher Nebel erzeugt. Die Flüssigkeitsmenge einer Patrone reicht, um etwa drei Minuten lang kontinuierlich Nebel zu erzeugen. Quelle: Drägerwerk AG & Co. KGaA
Wandströmungen lassen sich auch mittels aufgeklebter Wollfäden relativ einfach sichtbar machen. Hier gibt es zwei verschiedene Möglichkeiten:
Woll- und Garnfäden:
Je nach Strömungsgeschwindigkeit werden Fäden aus Nähgarn oder Wolle auf die Oberfläche des Messbereiches geklebt. Die Fäden können sehr einfach und schnell an jeder beliebigen Stelle angebracht werden und ermöglichen eine Strömungsvisualisierung auch über größere Gebiete.
Fluoreszierende dünne Fäden:
Dünne Nylonfasern werden mit einem UV-Farbstoff getränken und auf die Messoberfläche geklebt. Während sich die einzelnen Fasern in Strömungsrichtung ausrichten, werden sie mit einem UV-Stroboskop zum Fluoreszieren gebracht, wodurch die Strömung sehr gut sichtbar wird. Das Anbringen der sehr filigranen Fasern ist jedoch deutlich aufwendiger als bei Woll- oder Garnfäden. Außerdem muss darauf geachtet werden, dass sich die Nylonfasern nicht statisch aufladen.
Infiltration – Exfiltration
Der Luftvolumenstrom, der durch Undichtheiten an Fenstern und der Gebäudehülle entsteht, wird über die Begriffe Infiltration (Eindringen kalter Außenluft) und Exfiltration (Entweichen warmer Innenraumluft) definiert. Auch in anderen Fachbereichen werden die Begriffe "Infiltration" und "Exfiltration" verwendet, so z. B. in der Wassertechnik bei dem Einsickern von Oberflächen- bzw. Flusswasser in das Grundwasser und in der Abwassertechnik bei dem Einsickern von Oberflächenwasser in das Kanalsytem oder Entweichen von Abwasser in das Oberflächenwasser. Aber auch Leckluftvolumenströme durch Undichtigkeiten aus Luftleitungen einer lüftungstechnischen Anlage können einer Infiltration in die Räume führen. > mehr

Mess- und Prüfgeräte mieten - Dr.-Ing. Christian Schulze-Karal
Kanalnetzberechnung > Excel-Datei - Hartmann
Hinweis! Schutzrechtsverletzung: Falls Sie meinen, dass von meiner Website aus Ihre Schutzrechte verletzt werden, bitte ich Sie, zur Vermeidung eines unnötigen Rechtsstreites, mich umgehend bereits im Vorfeld zu kontaktieren, damit zügig Abhilfe geschaffen werden kann. Bitte nehmen Sie zur Kenntnis: Das zeitaufwändigere Einschalten eines Anwaltes zur Erstellung einer für den Diensteanbieter kostenpflichtigen Abmahnung entspricht nicht dessen wirklichen oder mutmaßlichen Willen. Die Kostennote einer anwaltlichen Abmahnung ohne vorhergehende Kontaktaufnahme mit mir wird daher im Sinne der Schadensminderungspflicht als unbegründet zurückgewiesen.
das neue Videoportal von HaustechnikDialog mit vielen interessanten Informationen und Anleitungen aus der Haustechnik
Videos aus der SHK-Branche
SHK-Lexikon

Besucherzaehler